• Photo 1
  • Photo 2
  • Photo 3
  • Photo 4
  • Photo 5
  • Photo 6

Scroll Down

For Sale West End Lane, Camden, London, NW6 Offers in excess of £75,000

Land  For Sale Offers in excess of £75,000

West End Lane, Camden, London, NW6

Prime West End Lane frontage in the heart of NW6

Planning consent granted for approx. 750 sq ft commercial development

High footfall location with excellent visibility

Outstanding transport links: Jubilee Line, Overground & multiple bus routes

Surrounded by established retail, dining and dense residential catchment

Rare consented development opportunity in a proven high-demand area

Prime Development Opportunity; West End Lane, London NW6 1LJ

Rare opportunity to acquire a prime parcel of land on West End Lane, located in the heart of NW6, one of North West London’s most sought-after commercial and residential hubs.

Planning consent has been granted for a commercial development of approximately 750sqft, making this an ideal opportunity for investors, developers, or owner-occupiers seeking a high-profile location.

Key highlights:
Prominent West End Lane position
Excellent footfall and visibility
Strong transport links (Jubilee Line, Overground, bus routes)
Surrounded by established retail, restaurants, and residential catchment
Suitable for a range of commercial uses (subject to consent)
A rare chance to secure a consented site in a proven, high-demand location.

Location

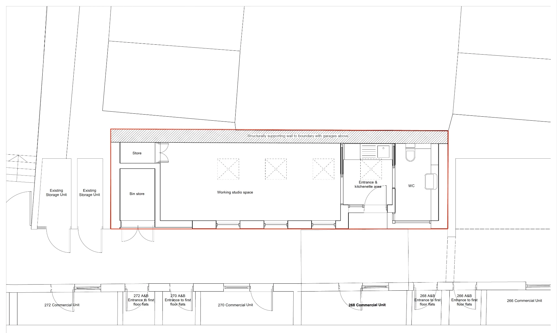
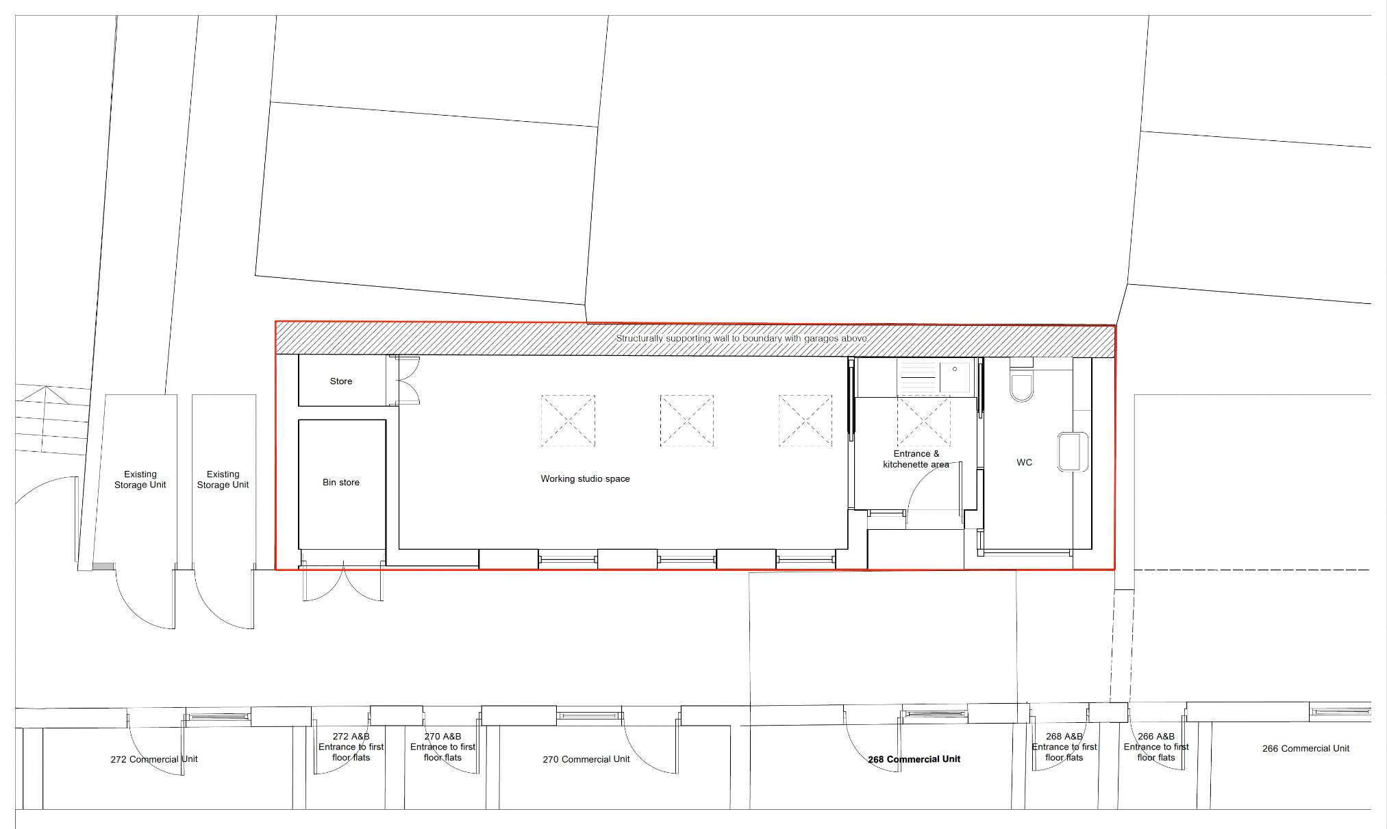
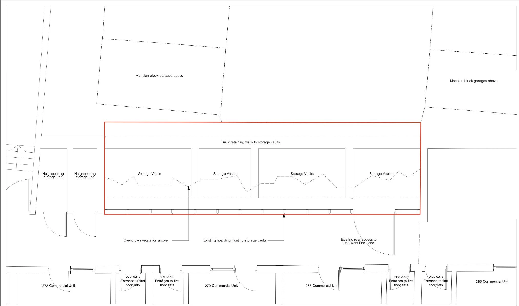
Floor Plans

Floor Plan 1
Floor Plan 2
Floor Plan 3
Floor Plan 1
Floor Plan 2
Floor Plan 3

Property Images

Photo 1
Photo 2
Photo 3
Photo 4
Photo 5
Photo 6

Arrange a Viewing

Arrange a Viewing

If you wish to book a viewing for this property please select the option below.

Book Viewing Online

Mortgage Calculator

Mortgage Details

Results

Stamp Duty Calculation

See full breakdown

Total SDLT due

Below is a breakdown of how the total amount of SDLT was calculated.
(SDLT stands for 'Stamp Duty Land Tax')

Up to £0k (Percentage rate 0 %)

Above £0k and up to £0k (Percentage rate 0 %)

Above £0k and up to £0k (Percentage rate 0 %)

Above £0k and up to £0k (Percentage rate 0 %)

Above £0k and up to £0m (Percentage rate 0 %)

Above £om (Percentage rate 0 %)

Please note: This is for illustrative purposes only. The above calculator should not be relied upon when making financial decisions. Please seek advice from a specialist financial provider.

IMPORTANT NOTICE

Descriptions of the property are subjective and are used in good faith as an opinion and NOT as a statement of fact. Please make further specific enquires to ensure that our descriptions are likely to match any expectations you may have of the property. We have not tested any services, systems or appliances at this property. We strongly recommend that all the information we provide be verified by you on inspection, and by your Surveyor and Conveyancer.